Rif: IMMO-125843187
MARANELLO
MODENA
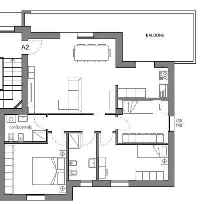
Maranello (5 minuti) In nuova palazzina di sole 4 unità in costruzione, proponiamo appartamento al primo ed ultimo piano composta da: ingresso in pranzo/soggiorno di 28 mq, cucinotto, disimpegno notte, 3 camere d aletto e 2 bagni, balcone loggiato di 22 mq. Completano l'immobile al piano terra garage con cantina.
Il fabbricato sarà realizzato conformemente alle nuove Norme Tecniche per le Costruzioni 2018 (NTC 2018), adeguandosi alla classificazione sismica del sito che classifica la zona come «Zona 2», a medio rischio sismico.
Di conseguenza la struttura portante dell'edificio sarà antisismica. I colori e le tinte dei vari elementi di facciata saranno definiti dal progettista con riferimento al Trend più attuale, mantenendo inalterato l'equilibrio complessivo delle facciate.
Gli isolamenti impiegati sono di ottima qualità,ricercati per la loro efficienza sempre nel rispetto della normativa vigente in materia applicabile. La posa degli isolanti è stata attentamente studiata per eliminare eventuali ponti termici.
Lo studio, la ricerca e la scelta dei materiali utilizzati vengono realizzati nel massimo rispetto della sostenibilità ambientale. Questo significa che ogni materiale scelto deve soddisfare oltre ai criteri prestazionali anche i criteri ambientali più severi
Il fabbricato sarà realizzato conformemente alle nuove Norme Tecniche per le Costruzioni 2018 (NTC 2018), adeguandosi alla classificazione sismica del sito che classifica la zona come «Zona 2», a medio rischio sismico.
Di conseguenza la struttura portante dell'edificio sarà antisismica. I colori e le tinte dei vari elementi di facciata saranno definiti dal progettista con riferimento al Trend più attuale, mantenendo inalterato l'equilibrio complessivo delle facciate.
Gli isolamenti impiegati sono di ottima qualità,ricercati per la loro efficienza sempre nel rispetto della normativa vigente in materia applicabile. La posa degli isolanti è stata attentamente studiata per eliminare eventuali ponti termici.
Lo studio, la ricerca e la scelta dei materiali utilizzati vengono realizzati nel massimo rispetto della sostenibilità ambientale. Questo significa che ogni materiale scelto deve soddisfare oltre ai criteri prestazionali anche i criteri ambientali più severi
Consistenze
| Descrizione | Superficie | Sup. comm. |
|---|---|---|
| Principali | ||
| Immobile - 1° piano | 105 Mq | 105 Mqc |
| Terrazza - 1° piano | 25 Mq | 12 Mqc |
| Box/Garage - piano terra | 35 Mq | 21 Mqc |
| Posto auto | 13 Mq | 4 Mqc |
| Totale | 142 Mqc | |
