Rif: IMMO-125842863
MARANELLO
MODENA
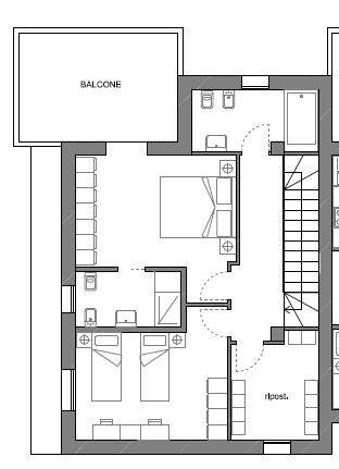
Maranello (5 minuti) In nuova palazzina di sole 4 unità in costruzione, proponiamo soluzione indipendente terra-cielo composta da: PT. ingresso in ampio pranzo/soggiorno e bagno ; P1 2 camere matrimoniali, 2 bagni, studio/ripostiglio e balcone loggiato di 15 mq . Completano l'immobile giardino di proprietà di 200 mq su 3 lati e garage con cantina.
Il fabbricato sarà realizzato conformemente alle nuove Norme Tecniche per le Costruzioni 2018 (NTC 2018), adeguandosi alla classificazione sismica del sito che classifica la zona come «Zona 2», a medio rischio sismico. Di conseguenza la struttura portante dell'edificio sarà antisismica.
I colori e le tinte dei vari elementi di facciata saranno definiti dal progettista con riferimento al Trend più attuale, mantenendo inalterato l'equilibrio complessivo delle facciate.
Gli isolamenti impiegati sono di ottima qualità,ricercatiperlaloroefficienzasemprenelrispettodellanormativavigenteinmateriaapplicabile.
La posa degli isolanti è stata attentamente studiata per eliminare eventuali ponti termici.
Lo studio, la ricerca e la scelta dei materiali utilizzati vengono realizzati nel massimo rispetto della sostenibilità ambientale. Questo significa che ogni materiale scelto deve soddisfare oltre ai criteri prestazionali anche i criteri ambientali più severi
Il fabbricato sarà realizzato conformemente alle nuove Norme Tecniche per le Costruzioni 2018 (NTC 2018), adeguandosi alla classificazione sismica del sito che classifica la zona come «Zona 2», a medio rischio sismico. Di conseguenza la struttura portante dell'edificio sarà antisismica.
I colori e le tinte dei vari elementi di facciata saranno definiti dal progettista con riferimento al Trend più attuale, mantenendo inalterato l'equilibrio complessivo delle facciate.
Gli isolamenti impiegati sono di ottima qualità,ricercatiperlaloroefficienzasemprenelrispettodellanormativavigenteinmateriaapplicabile.
La posa degli isolanti è stata attentamente studiata per eliminare eventuali ponti termici.
Lo studio, la ricerca e la scelta dei materiali utilizzati vengono realizzati nel massimo rispetto della sostenibilità ambientale. Questo significa che ogni materiale scelto deve soddisfare oltre ai criteri prestazionali anche i criteri ambientali più severi
Consistenze
| Descrizione | Superficie | Sup. comm. |
|---|---|---|
| Principali | ||
| Immobile - piano terra | 65 Mq | 65 Mqc |
| Immobile - 1° piano | 65 Mq | 65 Mqc |
| Terrazza - 1° piano | 16 Mq | 8 Mqc |
| Esterno - piano terra | 7 Mq | 7 Mqc |
| Giardino/Resede | 200 Mq | 20 Mqc |
| Box/Garage - piano terra | 27 Mq | 16 Mqc |
| Posto auto | 13 Mq | 4 Mqc |
| Totale | 185 Mqc | |
