Rif: C 3
FORMIGINE
MODENA
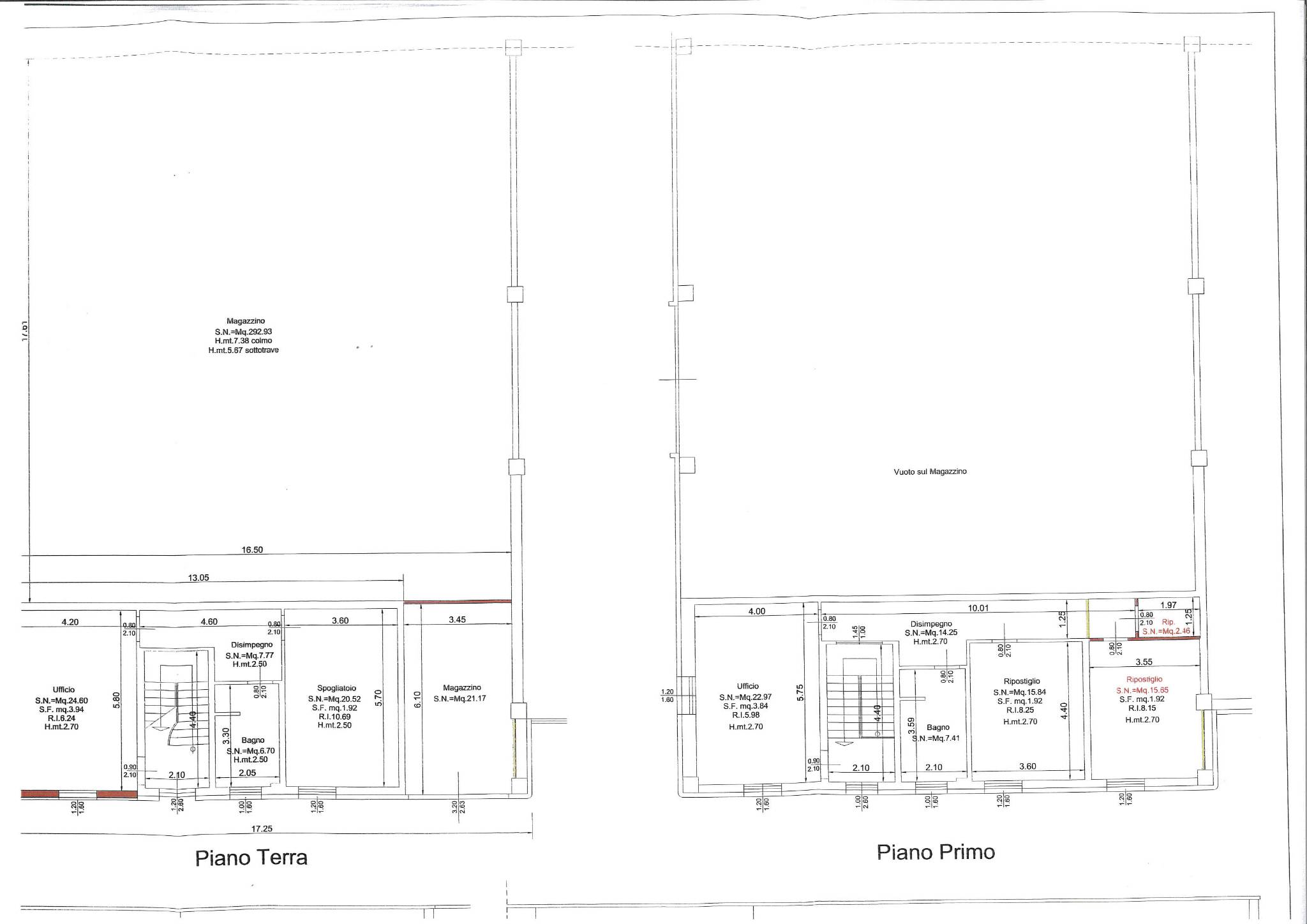
RIF C 3 MAGRETA: Offriamo in vendita in esclusiva un capannone di 320 mq, completo di due uffici di ampie dimensioni, attualmente interamente locato con regolare contratto di affitto. Si tratta di un'opportunità d'investimento molto vantaggiosa.
NON EFFETTUIAMO APPUNTAMENTI DIRETTI SENZA AVER EFFETTUATO UN PRIMO INCONTRO IN AGENZIA. Per info e appuntamenti contatta la sede di Formigine allo 059 571 001.
NON EFFETTUIAMO APPUNTAMENTI DIRETTI SENZA AVER EFFETTUATO UN PRIMO INCONTRO IN AGENZIA. Per info e appuntamenti contatta la sede di Formigine allo 059 571 001.
Consistenze
| Descrizione | Superficie | Sup. comm. |
|---|---|---|
| Principali | ||
| Capannone - piano terra | 320 Mq | 320 Mqc |
| Ufficio - piano terra | 81 Mq | 81 Mqc |
| Ufficio - 1° piano | 100 Mq | 100 Mqc |
| Totale | 501 Mqc | |
